9.9 左右杆翼
一、实例分析
由多个圆柱体(圆台)所构成,结构比较简单。
二、学习目标
在学习本实例时,注意以下要点:
掌握圆台的创建;
掌握特征的定位尺寸;
三、设计过程
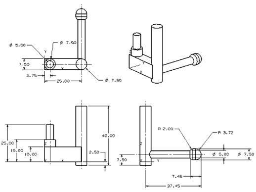
杆翼的结构尺寸如图9-104所示,绘制步骤如下:

图9-104 杆翼结构图
1. 选择“文件”|“新建”命令,新建名称为ganyi.prt的部件文档,再选择“起始”|“建模”命令打开建模功能;
2. 单击“成型特征”工具条上的“长方体”按钮
,在弹出的“长方体”参数对话框内输入“长度(XC)”为“25”,“宽度(YC)”为“7.5”,“高度(ZC)”为“10”,如图9-105(a)所示,单击“确定”按钮,绘制长方体如图9-105(b)所示;

(a) (b)
图9-105 绘制长方体
3.单击“成型特征”工具条上的“圆台”按钮
,选择长方体的上面作为放置面,在弹出的“圆台”参数对话框内输入“直径”为“7.5”,“高度”为“15-10”,如图106(a)所示,单击“确定”按钮,在弹出的“定位”对话框选择“垂直”方式
,定位在长方体的一端及到侧面距离都为“7.5/2”,单击“确定”按钮,效果如图106(b)所示;

(a) (b)
图106 创建圆台
4.重复上一步操作,在上一个圆台上面创建一个圆台,在弹出的“圆台”参数对话框内输入“直径”为“5”,“高度”为“25-15”,如图107(a)所示,单击“确定”按钮,在弹出的“定位”对话框选择“点到点”方式
,选择上一个圆台的“圆弧中心”,单击“确定”按钮,效果如图107(b)所示;

(a) (b)
图9-107 创建圆台
5.单击“圆柱”按钮
,选择“ZC”方向为轴线方向,在弹出的“圆柱”参数对话框内输入“直径”为“7.5”, “高度”为“40”,如图9-108(a)所示,单击“确定”按钮,在弹出的“点构造器”对话框中输入坐标“25,7.5/2,-2.5”作为圆柱的中心放置点,如图9-108(b)所示,单击“确定”按钮,在弹出的“布尔操作”对话框选择“求和”,得到如图9-108(c)所示效果;

(a) (b) (c)
图9-108 创建圆柱体
6.单击“基准平面”按钮
,选择“平分平面”按钮
,选择图9-109(a)所示两个平面创建基准平面如图9-109(b)所示;

(a) (b)
图9-109 创建基准平面
7.单击“圆台”按钮
,选择上一步创建的基准平面作为放置面,在“圆台”参数对话框内输入“直径”为“5”,“高度”为“30”,如图9-110(a)所示,单击“确定”按钮,在弹出的“定位”对话框选择“垂直”方式
,定位在长方体的左端的距离为“25”,到侧面距离都为“10/2”,单击“确定”按钮,效果如图110(b)所示;
8.重复上一步操作,选择上一步创建的圆台端面为放置面,在“圆台”参数对话框内输入“直径”为“7.5”,“高度”为“7.45”,如图9-111(a)所示,单击“确定”按钮,在弹出的“定位”对话框选择“点到点”方式
,选择上一个圆台的“圆弧中心”,单击“确定”按钮,效果如图9-111(b)所示;
9.单击“边倒圆”按钮
,倒出R2和R3.75的圆角,如图9-112(a)所示;
10.保存,见光盘part/9/ganyi.pat
11.同样,操作,反向建立右杆翼,如图9-112(b)所示;

(a) (b)
图9-110 创建圆台

(b) (b)
图9-111 创建圆台

(a)左杆翼 (b)右杆翼
图9-112 杆翼
1;所有标注为智造资料网zl.fbzzw.cn的内容均为本站所有,版权均属本站所有,若您需要引用、转载,必须注明来源及原文链接即可,如涉及大面积转载,请来信告知,获取《授权协议》。
2;本网站图片,文字之类版权申明,因为网站可以由注册用户自行上传图片或文字,本网站无法鉴别所上传图片或文字的知识版权,如果侵犯,请及时通知我们,本网站将在第一时间及时删除,相关侵权责任均由相应上传用户自行承担。
[complaint:内容投诉]
智造资料网打造智能制造3D图纸下载,在线视频,软件下载,在线问答综合平台 » UG卡丁车设计实例教程(九)_ 左右杆翼(图文教程)

