第一部分:什么是图纸?为什么图纸需要有比例?
个人认为,一份图纸即是一份详细且严谨的说明书,其目的在于将单个专业工作成果进行总结展示,并以此为依据,提供给协作各方进行配合,以期达到共同的目标。而比例这一特性,就是出于图纸严谨这一特性而产生的。下面以样例图纸为例,说明比例的含义:


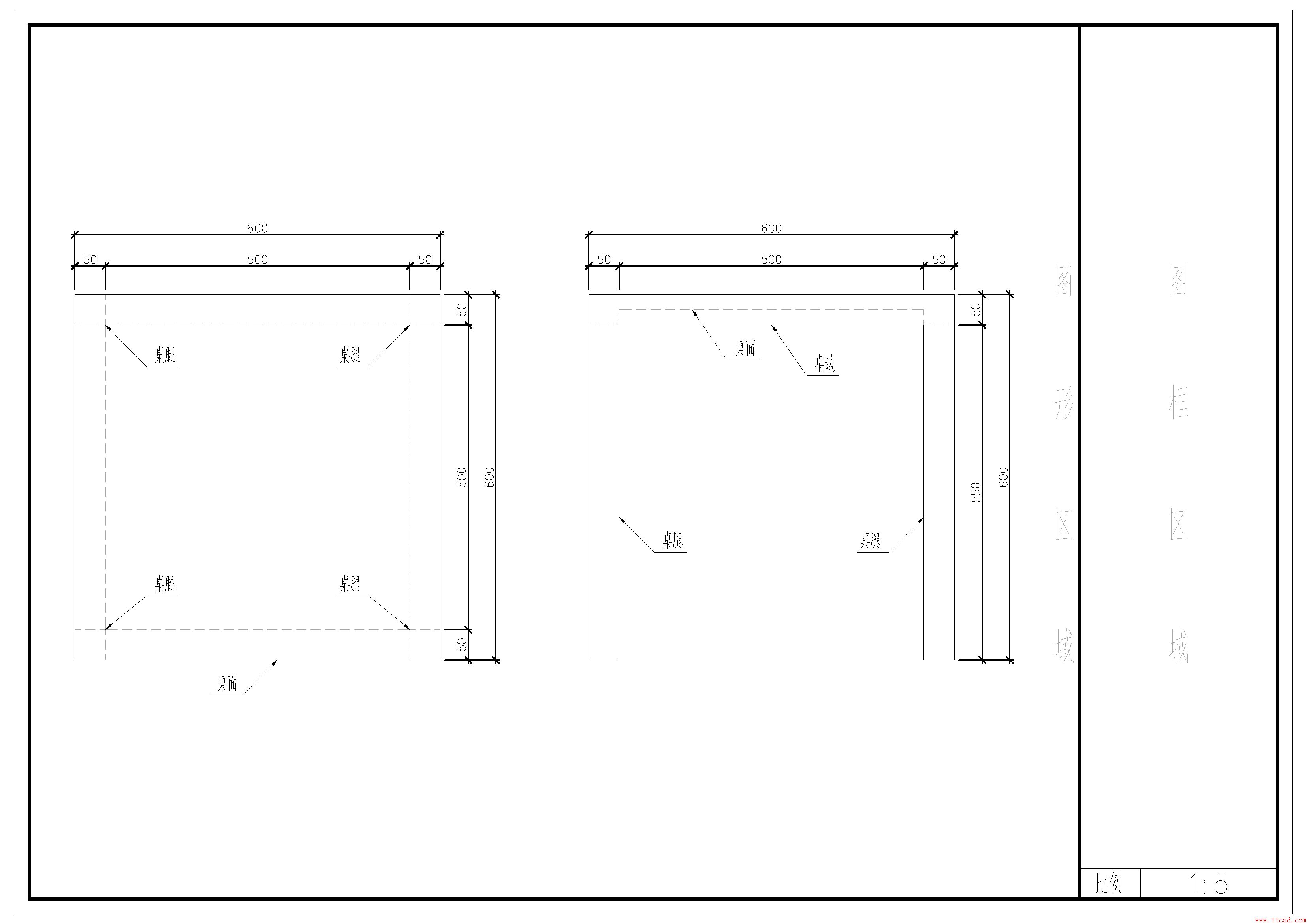
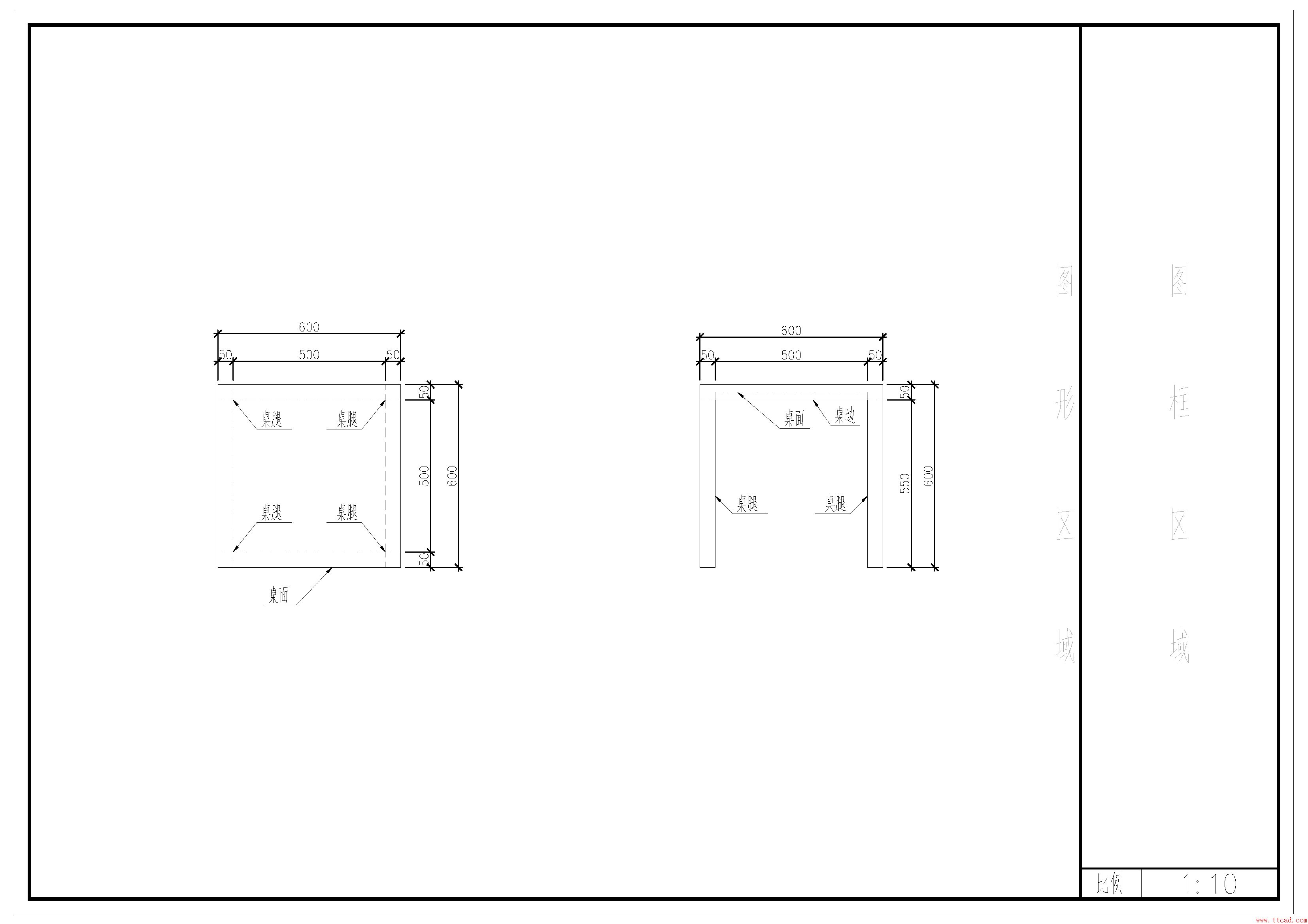
图1与图2为同一张桌子在不同比例的A3图纸下的样子,可以看到,在比例由1:5变成1:10后,桌子在图中的大小也变成了原来的1/2。需要注意的是,图中实体类的图元大小发生了改变,而如标注、说明文字等注释类的图元,其大小却是不变的。
假设一个制作家具的人拿到这份图纸后,不需要任何其他的面对面沟通,他就能够知道,我们需要制作一个方形的桌子 ,桌子变长均为600毫米,有四条腿,每条腿长550毫米,依靠四条宽高均为50毫米的桌边与桌面相连。其中,方形这个信息是由图中的实体形状线获得的,而尺寸由图中的尺寸标注上写的数字获取,每个东西分别是什么功能,由图中的说明文字获得解释,一份粗糙的说明书大概就完成了。
那么,在一份具有足够准确尺寸标注的图纸里,我们还需要按照比例来绘制这些图形的原因是什么?关键就是在于第一步的实体形状线,只有在按照比例绘制的图纸里,我们才能第一眼就对这个物体有一个直观的认识,比如这是一个正方形而不是长方形,比如这张桌子的桌面厚度与他的高度相比是非常小的,桌子下面有较为充裕的空间,避免了潜意识内的错误认识而引起协作各方不必要的工作量。
同时,出于节约纸张的目的,我们自然是想在一张图内放下实体形状越多越好,字体越小越好,比例的分母自然也是越大越好。然而,人眼的识别能力是有限的,过于微小的字体和图形,在阅读起来是极容易出现幻觉和误差的,所以,每张图比例的产生的需要根据图纸的大小、注释文字的多少进行合理的分配,在识别难易度与信息量之间找到一个平衡点。【第一部分完】
第二部分:如何使用CAD进行按比例出图?
CAD只是一个为了更快实现目标,提高生产效率的工具,使用的方法并没有绝对的好坏高低,只要能满足使用者的需求,那就达到这个工具的目的,看到回答里有许多解决方法,在此就只针对其中几个进行分析:
===================方案A:模型内直接按比例套图框====================
国内设计单位较为常用的做法,根据之前对于“比例”的解释,题主在题目中所提出的所谓“绘图比例”与“图框比例”并不是客观存在的,而是采用了本方案的出图方法而产生的CAD操作衍生问题,“打印比例”则又属于CAD在将图形转换至纸张时的一个参数,要解释这几个比例首先就必须了解. 一般情况下的的出图步骤,具体如下:
1、按照所谓“绘图比例”绘制图形:

此处所定义的“绘图比例”即为“一根在CAD里的线段,其长度与其所表示物体实际长度的比值”,此处建议无论出图比例如何,在首次绘制物体的时候,严格按1:1绘制。
{建议理由}按1:1比例绘制一个好处在于,即便需要的绘图比例并非1:1,使用者在绘图时也不必根据需要的绘图比例在绘制每一根线的时候另外进行换算工作,而可在完成后使用SCALE命令进行整体调整;另一个好处在于,当其他协作方打开DWG图纸时,可以直接利用CAD的“查询”功能直接查询相关图形的信息,比如线条的长度,面积,体积,而不需要在根据比例再另外进行乘以比例几次方的计算。
2、按照1:1制作图框,然后放大N倍(使用SCALE命令),直到图框能圈中所绘制的图形为止,记录下N的值,则该比例即为题主所描述的“图框比例”,样例中表示的图框比例为1:5

【需求产生原因分析】由上述两个步骤即可得出关于“绘图比例”及“图框比例”的定义及操作步骤,其产生的原因可从其他答案中大致推理得出,首先设计专业有大量的图纸均可按照1:100比例出图,因此在绘制时,直接按1:1“绘图比例”绘制的图形,用1:100的标注比例进行标注,最后套上1:100的图框后,即可完成该图的绘制及图框布置工作。在这种情况下,绘图比例并不需要特别更改。但当一张1:100的图形里突然要插入一张例如1:20的详图时,为了保证整体仍然是1:100的图框,故将详图部分放大5倍(“绘图比例”变为1:5),同时标注比例仍为1:100,放入1:100图框内,则此详图比例即为1:20,故可以满足在整体图纸1:100的情况下,部分图纸变为1:20,且操作极为简单的需求。
3、按照已确定比例定义标注及字体大小(即字体的大小、标注数字大小、标注线的长度、标注箭头的大小等比例参数),将所需表达的信息添加至图纸内。
【关于标注的定义参见第三部分】

4、菜单栏中选择“文件”→“打印”,按照下图设置打印参数,将打印比例设置为5,并在“打印范围”中选择“窗口”,框选图纸区域,强迫症患者必填“居中打印”选项。“打印比例”可定义为:CAD将电子图纸转换至纸张时的一个缩放参数,当你绘制一根100mm的线时,使用1:1的打印比例将其打印出来,那么用尺子在纸上测量这条线的长度,得到的数据将是100mm;而使用1:10的打印比例打印时,测量的长度就将变为10mm。

(设置打印比例相关参数)
(单击“窗口”后,框选图纸区域)
5、完成上述步骤后,单击“确认”即可完成打印,打印效果如示例图。【方案A完】
===================方案B:利用“布局”功能调整图纸比例================
目前较为先进的设计事务所普遍采用的出图方案,此方案无“绘图比例”、“图框比例”等概念,同时将图纸比例大小及注释类图元的大小整合为第一部分所述的“图纸比例”概念,CAD中将其翻译为“注释比例”,十分便于理解与操作,配合CAD其他功能使用,可发出八神连续技一般的优点,具体步骤如下:
1、同样按照1:1绘制图形,图形参考方案A中例图,此处不再重复。
2、点开“布局”选显卡,按照A3大小1:1绘制图框

3、利用“MV”命令,在图中“图形区域”内绘制一个视口,得到一个图纸全视图


4、双击视口区域激活视口,单击CAD右下角“注释比例”列表,更改“注释比例”,例如1:5

此时,图纸比例即为所选择的“注释比例”

5、同样打开“打印”设置,窗口选中图纸区域,但此时,“打印比例”仅需输入“1”即可。

6、单击“确认”,完成打印,出图效果同本回答中“图1”
【第三部分】何为标注比例?如何设置标注比例?
首先我们可以把CAD中的“标注比例”简单地划分为“标注几何比例”以及“标注数值比例”两大部分,“标注几何比例”即在出图后,该标注在纸张上的大小关系,比如字体的大小、线端头的长度等等;而“标注数值比例”则是指该标注读取线段长度后,是否需要乘以一个系数来作为该线段的表示长度。
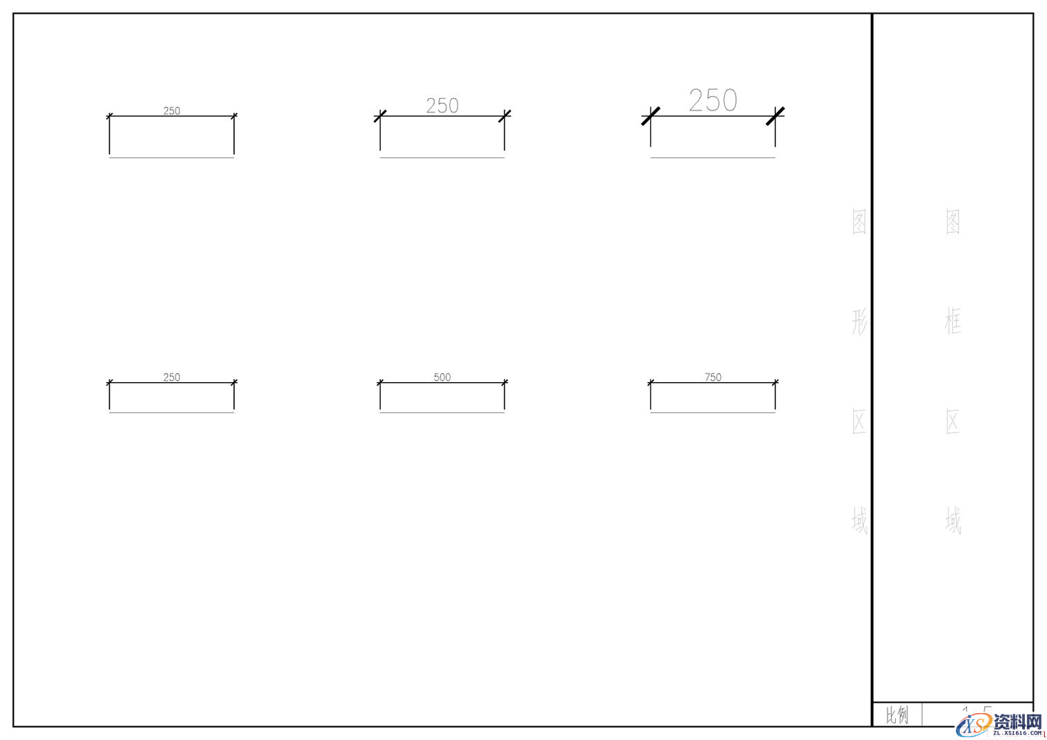
文字部分讲完,下面是用图片举个例子:

首先看图中的六根线段,其长度全部为250mm,唯一不同的是标注的比例的更改;
在此我想表达的是:
第一行的三个标注,从左到右,"标注几何比例"分别为1、2和3,数值都是250,但是字体和字体两端的箭头却一个比一个大;
而第二行的三个标注,从左到右,“标注数值比例”分别为1、2和3,大小虽然没有发生改变,但是上面标注的数值却由250变成了500、750,这一部分比较好解释,就是当标注图元读取了线段的长度数值“250”之后,分别乘以了“标注数值比例”1、2和3,得到了大家所看到的250、500以及750。
以上为效果展示,接下来详细解释一下第一行的具体区别,然后解释如何设置这些参数。
进一步举个例子:

上图中红色部分为批注,红色的尺寸为将图片打印至A3图纸后用尺子测量的数值,不难发现,第二行的数值是按照1:2:3的规律增长的,同样,第一行的字体大小也是按照1:2:3的规律变大的,两端的箭头也是同理。
--------------------------------------------------------------如何设置?-----------------

这是一个典型的标注,首先给各部分的定义:
500数字的部分叫做“标注字体”;500下面的那条线叫做“尺寸线”;尺寸线两端的粗斜线叫做“标注箭头”;标注箭头处与尺寸线垂直的两条线叫做“尺寸界线”;尺寸界线与所标注的图元处有一个点,叫做“标注起点”;而调整一个标注的“几何比例”就是在调整以上几个参数;
接下来是 标注<=>设置参数 的对应关系,一图必杀!!!
【第一步:告诉CAD你想要的尺寸标注是什么样的】

在此对于图中数值有疑惑的做一个科普小解释,首先这些数值在填的时候只需要考虑这个标注在出图以后的那张纸上用尺子去量时你想要得到的尺寸,比如字体高度就是3.5mm,箭头那条粗斜线的长度就是2.3mm,不需要按照比例换算后写个350mm的字体啥的,因为那是我们人类告诉电脑我们的需求后,电脑应该帮助人类去做的事。当然,如果用户习惯或者喜好这么做的话,也是不影响出图效果的。
----------------第一步完成--------------------------
完成了第一步,接下来还需要告诉CAD每个标注对对应的“标注几何比例”以及“标注数值比例”:
举个例子,一图必杀!!!!!

左下角图为“标注几何比例”,CAD会根据之前文字、箭头、起点偏移长度自动乘以该比例,而达到放大标注几何尺寸的目的。
右下角图为“标注数值比例”,CAD会根据所标注图元的长度自动乘以该比例,然后输出结果数值,图中第二行的三个数值可以清楚地表现该比例的效果。该比例的使用场景参见第二部分的方案A,就是在1:100的图框里放一个1:20的详图,由于绘图比例变成了1:5,所以该详图所使用的标注比例其“标注数值比例”则变为了5,这样,其所表达的数值才是我们想要表达的确切数值。
1;所有标注为智造资料网zl.fbzzw.cn的内容均为本站所有,版权均属本站所有,若您需要引用、转载,必须注明来源及原文链接即可,如涉及大面积转载,请来信告知,获取《授权协议》。
2;本网站图片,文字之类版权申明,因为网站可以由注册用户自行上传图片或文字,本网站无法鉴别所上传图片或文字的知识版权,如果侵犯,请及时通知我们,本网站将在第一时间及时删除,相关侵权责任均由相应上传用户自行承担。
[complaint:内容投诉]
智造资料网打造智能制造3D图纸下载,在线视频,软件下载,在线问答综合平台 » CAD按比例出图及设置标注比例的详细教程(图文教程)

