笔者于2003年在北京一家橱柜公司时,曾自行摸索了一套三维制图的方法。后来在从事集成家居、和室、园林等方面的设计工作中,又不时使用。个人认为简单的CAD三维制图、三维设计在有些时候是很好用的,起码以下两种情况挺好用:一是空间不大,如一个厨房、卫生间、一间和室;二是单体,如一个亭子、花架、座凳等等。
图纸是设计人员的意图的表达,一套好的图纸,是用最少的篇幅,表达出最全面的信息,它是设计人员的所有语言,让缺少专业读图基本技能的非专业人员——甲方、施工人员都能读懂,尤其在技术交底方面有优势。另外,在三视图完成后,可以旁边放一个透视图或轴测图,一是便于自己审视尺寸比例关系,二又有助于别人正确读图。
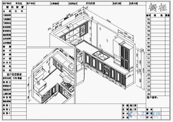
1、 橱柜

2



一、首先要熟悉的
三维制图,第一部分是建模,而建模前首先要熟悉的就是以下几点:
1、等轴测视图;
2、实体创建,包括实体编辑;
3、熟练应用坐标系统;
4、根据我的经验,尽量选用东北等轴测视图。

二、实体创建
视图没什么好说的。接下来说实体创建,实体创建软件提供了几种办法:a、基本实体(图中2), b、由面域通过拉伸或旋转创建(图中3), c、稍为复杂的图形基本可以用“实体”及“实体编辑”工具栏的其余命令实现。其中用的最多的是布尔运算(图中4)。
了解和熟悉这些命令的办法很简单,鼠标放在相应图标上,左下角有提示。在操作过程中,请一定多留意,命令提示栏的内容,没事都试试,你会有惊

三、实体创建中要注意的
实体创建中最要注意的是,像做任何事一样,心中必须要有整体,在此基础上,要有合理分解的思想。下图示意:


如上,亭子(包括石桌石凳)在实际绘制过程中,仅仅分解成了共大小不同的7个部件。在实际作图中,要习惯于先粗后细,主要是借助图块的定义和在位编辑。可以用最省事的,带“基点复制”后“粘贴为块”的办法,手不用太快也2秒搞定。先搞好定位,布置位置后,用复制到空白处的图块,做在位编辑,进行细化。改图或调整尺寸也很方便。熟练以后,绘图用的时间远远小于你思考和构思的时间。
1;所有标注为智造资料网zl.fbzzw.cn的内容均为本站所有,版权均属本站所有,若您需要引用、转载,必须注明来源及原文链接即可,如涉及大面积转载,请来信告知,获取《授权协议》。
2;本网站图片,文字之类版权申明,因为网站可以由注册用户自行上传图片或文字,本网站无法鉴别所上传图片或文字的知识版权,如果侵犯,请及时通知我们,本网站将在第一时间及时删除,相关侵权责任均由相应上传用户自行承担。
[complaint:内容投诉]
智造资料网打造智能制造3D图纸下载,在线视频,软件下载,在线问答综合平台 » CAD三维制图的方法(图文教程)

