滚动轴承特征画法和规定画法的尺寸比例示例(GB/T4459.7—1998)
特 征 画 法 | 规 定 画 法 | |
| 深沟球轴承 (GB/T 276-1994) |
|
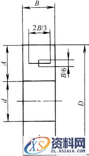
圆柱滚子轴承 (GB/T 283-1994) |
| |
| 双列圆柱滚子轴承 (GB/T 285-1994) |
|
|
|
|
| 调心球轴承 (GB/T 281-1994) |
|
调心滚子轴承 (GB/T 288-1994) |
| |
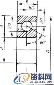
| 角接触球轴承 (GB/T 292-1994) |
|
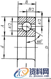
圆锥滚子轴承 (GB/T 297-1994) |
| |
| 双列角接触球轴承 (GB/T 296-1994) |
|
| 四点接触球轴承 (GB/T 294-1994) |
|
| 三点接触球轴承 (GB/T 294-1994) |
|
| 推力球轴承 (GB/T 301-1995) |
|
| 双向推力球轴承 (GB/T 301-1995) |
|
免责声明:
1;所有标注为智造资料网zl.fbzzw.cn的内容均为本站所有,版权均属本站所有,若您需要引用、转载,必须注明来源及原文链接即可,如涉及大面积转载,请来信告知,获取《授权协议》。
2;本网站图片,文字之类版权申明,因为网站可以由注册用户自行上传图片或文字,本网站无法鉴别所上传图片或文字的知识版权,如果侵犯,请及时通知我们,本网站将在第一时间及时删除,相关侵权责任均由相应上传用户自行承担。
[complaint:内容投诉]
智造资料网打造智能制造3D图纸下载,在线视频,软件下载,在线问答综合平台 » 滚动轴承特征画法和规定画法的尺寸比例示例(GB/T4459.7—1998)(图文教程) ...
1;所有标注为智造资料网zl.fbzzw.cn的内容均为本站所有,版权均属本站所有,若您需要引用、转载,必须注明来源及原文链接即可,如涉及大面积转载,请来信告知,获取《授权协议》。
2;本网站图片,文字之类版权申明,因为网站可以由注册用户自行上传图片或文字,本网站无法鉴别所上传图片或文字的知识版权,如果侵犯,请及时通知我们,本网站将在第一时间及时删除,相关侵权责任均由相应上传用户自行承担。
[complaint:内容投诉]
智造资料网打造智能制造3D图纸下载,在线视频,软件下载,在线问答综合平台 » 滚动轴承特征画法和规定画法的尺寸比例示例(GB/T4459.7—1998)(图文教程) ...
























