一、 壁厚
压铸件的壁厚对铸件质量有很大的影响。以铝合金为例,薄壁比厚壁具有更高的强度和良好的致密性。因此,在保证铸件有足够的强度和刚性的条件下,应尽可能减少其壁厚,并保持壁厚均匀一致。
铸件壁太薄时,使金属熔接不好,影响铸件的强度,同时给成型带来困难;壁厚过大或严重不均匀则易产生缩瘪及裂纹。随着壁厚的增加,铸件内部气孔、缩松等缺陷也随之增多,同样降低铸件的强度。
压铸件的壁厚一般以2.5~4mm为宜,壁厚超过6mm的零件不宜采用压铸。推荐采用的最小壁厚和正常壁厚见表1。
表1 压铸件的最小壁厚和正常壁厚
![]() | ||||||||
| 壁厚处的面积a×b(cm2) | 锌合金 | 铝合金 | 镁合金 | 铜合金 | ||||
| 壁 厚 h (mm) | ||||||||
| 最小 | 正常 | 最小 | 正常 | 最小 | 正常 | 最小 | 正常 | |
| ≤25 | 0.5 | 1.5 | 0.8 | 2.0 | 0.8 | 2.0 | 0.8 | 1.5 |
| >25~100 | 1.0 | 1.8 | 1.2 | 2.5 | 1.2 | 2.5 | 1.5 | 2.0 |
| >100~500 | 1.5 | 2.2 | 1.8 | 3.0 | 1.8 | 3.0 | 2.0 | 2.5 |
| >500 | 2.0 | 2.5 | 2.5 | 4.0 | 2.5 | 4.0 | 2.5 | 3.0 |
现使用的绝大多数为铝压铸件,其壁厚一般控制在2.0~2.5mm。
1)铸造圆角
压铸件各部分相交应有圆角(分型面处除外),使金属填充时流动平稳,气体容易排出,并可避免因锐角而产生裂纹。对于需要进行电镀和涂饰的压铸件,圆角可以均匀镀层,防止尖角处涂料堆积。
压铸件的圆角半径R一般不宜小于1mm,最小圆角半径为0.5 mm,见表2。铸造圆角半径的计算见表3。
表2 压铸件的最小圆角半径(mm)
| 压铸合金 | 圆角半径R | 压铸合金 | 圆角半径R |
| 锌合金 | 0.5 | 铝、镁合金 | 1.0 |
| 铝锡合金 | 0.5 | 铜合金 | 1.5 |
现采用的圆角一般取R1.5。
表3 铸造圆角半径的计算(mm)
| 相连接两壁的厚度 | 图例 | 圆角半径 |
| 相等壁厚 | ![]() |
rmin=Kh rmax=Kh R=r+h |
| 不等壁厚 | ![]() |
r≥(h+h1)/3 R= r+(h+h1)/2 |
说明:①、对锌合金铸件,K=1/4;对铝、镁、合金
铸件, K=1/2。
②、计算后的最小圆角应符合表2的要求。
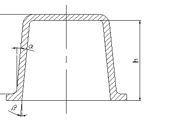
2) 脱模斜度
设计压铸件时,就应在结构上留有结构斜度,无结构斜度时,在需要之处,必须有脱模的工艺斜度。斜度的方向,必须与铸件的脱模方向一致。推荐的脱模斜度见表4。
表4 脱模斜度
![]() | 合金 | 配合面的最小脱模斜度 | 非配合面的最小脱模斜度 | ||
| 外表面α | 内表面β | 外表面α | 内表面β | ||
| 锌合金 | 0°10′ | 0°15′ | 0°15′ | 0°45′ | |
| 铝、镁合金 | 0°15′ | 0°30′ | 0°30′ | 1° | |
| 铜合金 | 0°30′ | 0°45′ | 1° | 1°30′ | |
说明:①、由此斜度而引起的铸件尺寸偏差,不计入尺寸公差值内。
②、表中数值仅适用型腔深度或型芯高度≤50mm,表面粗糙度在Ra0.1,大端
与小端尺寸的单面差的最小值为0.03mm。当深度或高度>50mm,或表面
粗糙 度超过Ra0.1时,则脱模斜度可适当增加。
现采用的脱模斜度一般取1.5°。
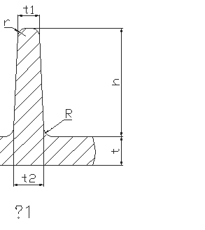
三、加强筋
加强筋的设置可以增加零件的强度和刚性,同时改善了压铸的工艺性。
但须注意:
① 分布要均匀对称;
② 与铸件连接的根部要有圆角;
③ 避免多筋交叉;
④ 筋宽不应超过其相连的壁的厚度。当壁厚小于 1.5mm时,不宜采用加强筋;
⑤ 加强筋的脱模斜度应大于铸件内腔所允许的铸造斜度。
一般采用的加强筋的尺寸按图1选取:
t1=2 t /3~t;t2=3 t /4~t;
R≥t/2~t;
h≤5t; r≤0.5mm
(t—压铸件壁厚,最大不超过6~8mm)。

四、铸孔和孔到边缘的最小距离
1)铸孔
压铸件的孔径和孔深,对要求不高的孔可以直接压出,按表5。
表5 最小孔径和最大孔深
|
孔 合金 径 类别 | 最小孔径 d(mm) | 最大孔深(mm) |
孔的最 小斜度 | ||||
| 一般的 |
技术上 可能的 | 盲孔 | 通孔 | ||||
| d>5 | d<5 | d>5 | d<5 | ||||
| 锌合金 | 1.5 | 0.8 | 6d | 4d | 12d | 8d | 0~0.3% |
| 铝合金 | 2.5 | 2.0 | 4d | 3d | 8d | 6d | 0.5 % ~1% |
| 镁合金 | 2.0 | 1.5 | 5d | 4d | 10d | 8d | 0~0.3% |
| 铜合金 | 4.0 | 2.5 | 3d | 2d | 5d | 3d | 2 % ~4% |
说明:①、表内深度系指固定型芯而言,,对于活动的单个型芯其深度还可以适当增加。
②、对于较大的孔径,精度要求不高时,孔的深度亦可超出上述范围。
对于压铸件自攻螺钉用的底孔,推荐采用的底孔直径见表6。
表6 自攻螺钉用底孔直径(mm)
![]() | 螺纹规格d | M2.5 | M3 | M3.5 | M4 | M5 | M6 | M8 |
| d2 | 2.30~ 2.40 | 2.75~ 2.85 | 3.18~ 3.30 | 3.63~ 3.75 | 4.70~ 4.85 | 5.58~ 5.70 | 7.45~ 7.60 | |
| d3 | 2.20~ 2.30 | 2.60~ 2.70 | 3.08~ 3.20 | 3.48~ 3.60 | 4.38~ 4.50 | 5.38~ 5.50 | 7.15~ 7.30 | |
| d4 | ≥4.2 | ≥5.0 | ≥5.8 | ≥6.7 | ≥8.3 | ≥10 | ≥13.3 | |
| 旋入深度t | t≥1.5d | |||||||
现较为常用的自攻螺钉规格为M4与M5,其采用的底孔直径如下表:
| d2 | d3 | t | |||
| M4 | 3.84 |
0 -0.1 | 3.59 |
+0.1 0 | 10 |
| M5 | 4.84 |
0 -0.1 | 4.54 |
+0.1 0 | 20 |
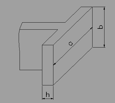
2) 铸孔到边缘的最小距离
为了保证铸件有良好的成型
条件,铸孔到铸件边缘应保
持一定的壁厚,见图2。
b≥(1/4~1/3)t
当t<4.5时,b≥1.5mm

五、压铸件上的长方形孔和槽
压铸件上的长方形孔和槽的设计推荐按表7 采用。
表7 长方形孔和槽(mm)
![]() | |||||
| 合金类别 | 铅锡合金 | 锌合金 | 铝合金 | 镁合金 | 铜合金 |
| 最小宽度b | 0.8 | 0.8 | 1.2 | 1.0 | 1.5 |
| 最大深度H | ≈10 | ≈12 | ≈10 | ≈12 | ≈10 |
| 厚度h | ≈10 | ≈12 | ≈10 | ≈12 | ≈8 |
说明:宽度b在具有铸造斜度时,表内值为小端部位值。
六、压铸件内的嵌件
压铸件内采用嵌件的目的:
① 改善和提高铸件上局部的工艺性能,如强度、硬度、耐磨性等;
② 铸件的某些部分过于复杂,如孔深、内侧凹等无法脱出型芯而采用嵌件;
③ 可以将几个部件铸成一体。
设计带嵌件的压铸件的注意事项:
① 嵌件与压铸件的连接必须牢固,要求在嵌件上开槽、凸 起、滚花等;
② 嵌件必须避免有尖角,以利安放并防止铸件应力集中;
③ 必须考虑嵌件在模具上定位的稳固性,满足模具内配合要求;
④ 外包嵌件的金属层不应小于1.5~2mm;
⑤ 铸件上的嵌件数量不宜太多;
⑥ 铸件和嵌件之间如有严重的电化腐蚀作用,则嵌件表面需要镀层保护;
⑦ 有嵌件的铸件应避免热处理,以免因两种金属的相变而引起体积变化,使嵌件松动。
七、压铸件的加工余量
压铸件由于尺寸精度或形位公差达不到产品图纸要求时,应首先考虑采用精整加工方法,如校正、拉光、挤压、整形等。必须采用机加工时应考虑选用较小的加工余量,并尽量以不受分型面及活动成型影响的表面为毛坯基准面。
推荐采用的机加工余量及其偏差值见表8。铰孔余量见表9。
表8 推荐机加工余量及其偏差(mm)
| 基本尺寸 | ≤100 | >100~250 | > 250 ~400 | > 400 ~630 | > 630 ~1000 | |||||
| 每面余量 | 0.5 |
+0.4 -0.1 | 0.75 |
+0.5 -0.2 | 1.0 |
+0.5 -0.3 | 1.5 |
+0.6 -0.4 | 2.0 |
+1 -0.4 |
表9 推荐铰孔加工余量(mm)
| 公称孔径D | ≤6 | >6~10 | > 10 ~18 | >18 ~30 | >30 ~50 | >50 ~60 |
| 铰孔余量 | 0.05 | 0.1 | 0.15 | 0.2 | 0.25 | 0.3 |
现采用的机加工余量一般取0.3~0.5mm。
1;所有标注为智造资料网zl.fbzzw.cn的内容均为本站所有,版权均属本站所有,若您需要引用、转载,必须注明来源及原文链接即可,如涉及大面积转载,请来信告知,获取《授权协议》。
2;本网站图片,文字之类版权申明,因为网站可以由注册用户自行上传图片或文字,本网站无法鉴别所上传图片或文字的知识版权,如果侵犯,请及时通知我们,本网站将在第一时间及时删除,相关侵权责任均由相应上传用户自行承担。
[complaint:内容投诉]
智造资料网打造智能制造3D图纸下载,在线视频,软件下载,在线问答综合平台 » 压铸件设计规范(图文教程)







