AutoCAD设计羽毛球教程(图文教程)

    先传几张渲染图看一下效果

AutoCAD设计羽毛球教程(图文教程),j.jpeg,教程,AutoCAD,设计,第1张 

    渲染能力有限只有这个效果了
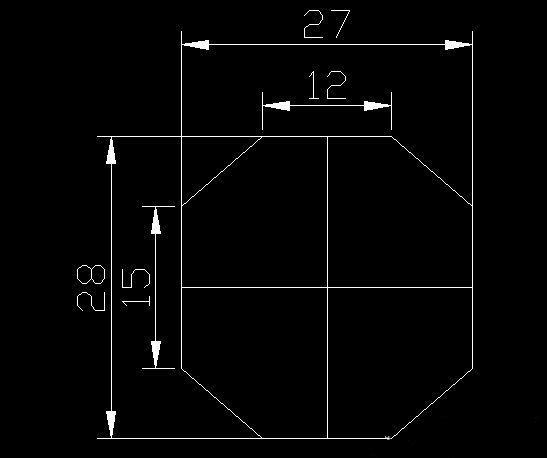
1.把当前视图(命令V)改为主视图,画如图所示的图形。

AutoCAD设计羽毛球教程(图文教程),1.jpg,教程,AutoCAD,设计,第2张 

2.如图把一条边偏移(命令O2mm过来,如图,再把刚才所画的图形进行面域(命令REG),把刚才面域的复制(命令CO)一个,基点就是红线的中心,第二点也是红线的中心,即可。然后再使用缩放(命令SC),基点即红线的中心,然后输入参照(R),参照长度即红线的中心到红线左边的端点,新的长度即绿线的中心,再把此图复制一个到旁边,即可,如图所示。

AutoCAD设计羽毛球教程(图文教程),2.jpg,教程,AutoCAD,设计,第3张 

3.然后,再将小八边形拉伸(命令EXT2mm,如图。再将大八边形拉伸(命令EXT5mm,如图,再使用差集(命令SU),从中减去的实体或面域:选择大八边形即可,要减去的实体或面域:选择小八边形即可。如图所示。

AutoCAD设计羽毛球教程(图文教程),3.jpg,教程,AutoCAD,设计,第4张 

4.把大八边如图移动过去5mm 过去,(表达不好)基点即是黄线的中心,把缩放的小八边形如图移动过过10mm过去,基点即是黄线的中心。再点击绘图放样,按放样次序选择横截面:即是大八边形即可,按放样次序选择横截面:是缩放的小八边形即可,再确定,重新出来一个对话框也按确定即可。如图所示。

AutoCAD设计羽毛球教程(图文教程),4.jpg,教程,AutoCAD,设计,第5张 

5.然后点击修改实体编辑拉伸面,拉伸高度即130mm.然后,复制面(修改---实体编辑---复制面)制八边形到如图黄色的地方。再以白线为中心画圆直径为12mm,再移动到如图70mm即可。点击绘图建模扫掠,按放样次序选择横截面:即是大八边形即可,按放样次序选择横截面:即是小圆即可,然后出现对话框如图,选择拔模斜度却可,不用修改参数,确定即可,如图所示。

AutoCAD设计羽毛球教程(图文教程),5.jpg,教程,AutoCAD,设计,第6张 

6.然后如图进行拉伸,拉伸面才行的,拉伸高寒度即160mm。第5有讲过的。再在白色的小圆画椭圆(命令EL),长轴20mm,短轴16mm即可,利用放样即可完成,放样高度即50mm,椭圆是平的才好看一些。如图所示。

AutoCAD设计羽毛球教程(图文教程),6.jpg,教程,AutoCAD,设计,第7张 

7.如图,插入此图片,用样条曲线描画出拍框的外形,即可,然后复制一个到旁边,等哈有用的,如图所示。

AutoCAD设计羽毛球教程(图文教程),7.jpg,教程,AutoCAD,设计,第8张 

8.再在椭圆的象限期点也画一个椭圆,长轴8mm,短轴是6mm。再如图在小的椭圆的象限点上画如红线,再把红线偏移(命令O)过去0.5mm,如图。再把红线偏移过去1mm如图。再用所得的点画如图绿色的圆弧(命令

AutoCAD设计羽毛球教程(图文教程),8.jpg,教程,AutoCAD,设计,第9张 

9.再用打断(命令BR)进行打断,得如图,再将此图面域(命令REG),然后绘图建模扫掠,把小的椭圆进行扫掠,路径就是(如图),即可。如图所示。

AutoCAD设计羽毛球教程(图文教程),9.jpg,教程,AutoCAD,设计,第10张 

10.如图把红线移动(命令M)过去20mm过去,黄线移动过去12mm,如图,再在两条线的端点画圆(直径0.7mm),再进行拉伸,只在刚才移动过去的线上画圆,另外两条不要的。两边只要比椭圆的半轴要长就可以了,如图所示。

AutoCAD设计羽毛球教程(图文教程),10.jpg,教程,AutoCAD,设计,第11张 

11.然后,再把刚才拉伸的圆柱进行阵列(命令AR)设置也是如图,先阵列有红色线的。如图所示。

AutoCAD设计羽毛球教程(图文教程),11.jpg,教程,AutoCAD,设计,第12张 

12.然后,再重复上面的,阵列有黄色线的。设置如图,如图所示。

AutoCAD设计羽毛球教程(图文教程),12.jpg,教程,AutoCAD,设计,第13张 

13.再在外面画一个方框,只要把所画的圆柱复盖了就可以了,再面域,再将中间的椭圆也面域下下,再进行差集,将中间的椭圆减掉就可以了,选择要从中减去的实体或面域就选择外面的方框,选择要减去的实体或面域 就选择中间的椭圆,就可以了,再将所得的面,上下各拉抻10mm,(只要比所画的圆柱的直径大就可以了)。如图所示。

AutoCAD设计羽毛球教程(图文教程),13.jpg,教程,AutoCAD,设计,第14张 

14.然后,再进行差集(命令SU),选择圆柱的时候,用实线框选择,把圆柱全部框起来,外面的方框只要留一点不框就可以了,这样更快的选择。差集所得,网己经画好了,如图所示。

AutoCAD设计羽毛球教程(图文教程),14.jpg,教程,AutoCAD,设计,第15张 

15.再将网移动(端点是中间的那根柱子,点击右边的那个端点,)到刚才的椭圆的端点,然后,再将椭圆移动到右边的0.7mm。(不然不是在中间的)如图所示。

AutoCAD设计羽毛球教程(图文教程),15.jpg,教程,AutoCAD,设计,第16张 

16.如图,再画一个椭圆长轴是18mm,短轴是10mm (中点就在大椭圆的端点)。如图。现画一个椭圆长轴是8mm,短轴4mm,(中点就在大椭圆的端点)。再将小的椭圆移动如图一段距离到大的椭圆的交点(任意发挥,适合即可)再将大的椭圆如画进行打断(命令BR)。如图所示。

AutoCAD设计羽毛球教程(图文教程),16.jpg,教程,AutoCAD,设计,第17张 

17.点击绘图建模放样,依次选择两个横截面(即大的椭圆和小的椭圆),然后再选择路径(即红线)
如图所示。

AutoCAD设计羽毛球教程(图文教程),17.jpg,教程,AutoCAD,设计,第18张 

18然后,再将所得的图,移动到如图所示,不说了(你们懂的)再将其镜像到两边即可。如图所示

19再将所有的连接在一起,如图所示。。。

AutoCAD设计羽毛球教程(图文教程),18.jpg,教程,AutoCAD,设计,第19张 

    这一张是打开了透视的看一下。

AutoCAD设计羽毛球教程(图文教程),1111.jpeg,教程,AutoCAD,设计,第20张 

免责声明:
1;所有标注为智造资料网zl.fbzzw.cn的内容均为本站所有,版权均属本站所有,若您需要引用、转载,必须注明来源及原文链接即可,如涉及大面积转载,请来信告知,获取《授权协议》。
2;本网站图片,文字之类版权申明,因为网站可以由注册用户自行上传图片或文字,本网站无法鉴别所上传图片或文字的知识版权,如果侵犯,请及时通知我们,本网站将在第一时间及时删除,相关侵权责任均由相应上传用户自行承担。
[complaint:内容投诉]
智造资料网打造智能制造3D图纸下载,在线视频,软件下载,在线问答综合平台 » AutoCAD设计羽毛球教程(图文教程)