






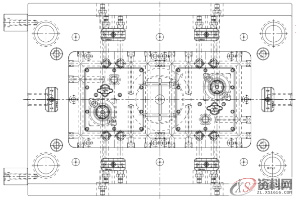
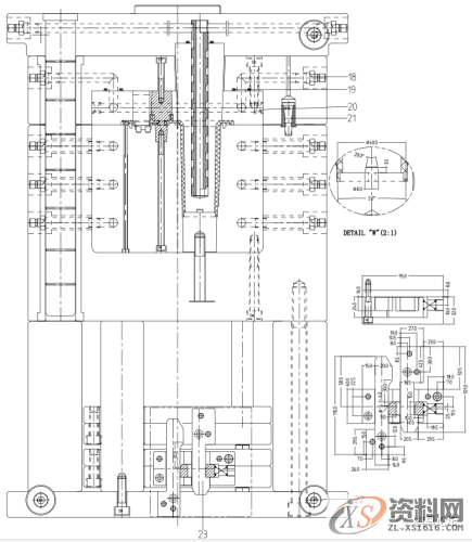
图1 数据传输接头后壳模具图
2D五金模具设计、3D汽车模具设计,冲压模具设计全能班、UG塑胶模具设计、Pore产品设计、北京精雕、Zbrush圆雕设计、Solidworks产品设计培训、UG/Mastercam/Powermill数控编程、三轴/四轴/五轴精雕浮雕模具设计、数控加工CNC电脑锣操机、精雕浮雕操机、Autoform软件、UG/VISI软件应用、PressCAD软件应用、AutoCAD等学历提升课程供君参观参考,找李老师预约提供免费试学。学习电话:13018636633(微信同号)QQ:1740467385
学习地址:东莞市横沥镇新城工业区兴业路121号-潇洒教育
免责声明:
1;所有标注为智造资料网zl.fbzzw.cn的内容均为本站所有,版权均属本站所有,若您需要引用、转载,必须注明来源及原文链接即可,如涉及大面积转载,请来信告知,获取《授权协议》。
2;本网站图片,文字之类版权申明,因为网站可以由注册用户自行上传图片或文字,本网站无法鉴别所上传图片或文字的知识版权,如果侵犯,请及时通知我们,本网站将在第一时间及时删除,相关侵权责任均由相应上传用户自行承担。
[complaint:内容投诉]
智造资料网打造智能制造3D图纸下载,在线视频,软件下载,在线问答综合平台 » 数据传输接头后壳注塑模设计要点
1;所有标注为智造资料网zl.fbzzw.cn的内容均为本站所有,版权均属本站所有,若您需要引用、转载,必须注明来源及原文链接即可,如涉及大面积转载,请来信告知,获取《授权协议》。
2;本网站图片,文字之类版权申明,因为网站可以由注册用户自行上传图片或文字,本网站无法鉴别所上传图片或文字的知识版权,如果侵犯,请及时通知我们,本网站将在第一时间及时删除,相关侵权责任均由相应上传用户自行承担。
[complaint:内容投诉]
智造资料网打造智能制造3D图纸下载,在线视频,软件下载,在线问答综合平台 » 数据传输接头后壳注塑模设计要点

