
掌握模具中哪些部件需要拆铜公


拆铜公的原则
铜公拆分的原则主要包括铜料成本、加工效率和铜公加工的可行性三大因素。拆分铜时,首先以节省铜料为原则,如铜公基准板的厚度需15mm即可,那不能设置为18mm或更大。当然,也不能为了节省铜料而盲目地减少铜公基准板的厚度和宽度。如图10-1所示的两个需要拆铜公的部位,其位置是对称的,但距离较大,如果拆成一个整体式铜公时,将会浪费很多铜料。铜公如图10-2所示。




拆铜公的注意事项



照明电筒前后模铜公的拆分

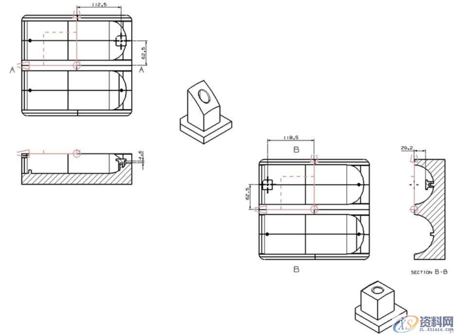
1.模型分析


2.拆铜公具体步骤
打开〖Example\Ch010\zmdt.prt〗文件,如图10-19所示。



出铜公工程图

工程师经验点评
学习完本文后,大家应该重点掌握以下的知识内容:
(1)学会调入〖注塑模工具〗工具条,并掌握〖创建方块〗、〖分割实体〗和〖替换实体〗等常用的功能的使用。
(2)重点掌握模具中哪些部位需要拆铜公,拆成“整公”或 “散公”等。
(3)学会如何快速创建铜公基准板。
(4)重点掌握如何使基准板的中心与加工中心的距离为整数。
(5)避免铜公碰到侧壁,合理设置EDM冲水高度。
(6)当铜公的四周是直壁,且厚度足够时,则可不必创建基准板。东莞潇洒职业培训学校目前开设课程有:学历提升、积分入户、数控编程培训、塑胶模具设计培训,压铸模具设计培训、冲压模具设计培训,精雕、ZBrush圆雕培训、Solidworks产品设计培训、pro/E产品设计培训、AutoformR7工艺分析培训,非标自动化设计、PLC编程、CNC电脑锣操机、平面设计等培训,潇洒职业培训学校线下、线上等网络学习方式,随到随学,上班学习两不误,欢迎免费试学!
联系电话:13018636633(微信同号) QQ:1740467385
学习地址:东莞市横沥镇
免责声明:
1;所有标注为智造资料网zl.fbzzw.cn的内容均为本站所有,版权均属本站所有,若您需要引用、转载,必须注明来源及原文链接即可,如涉及大面积转载,请来信告知,获取《授权协议》。
2;本网站图片,文字之类版权申明,因为网站可以由注册用户自行上传图片或文字,本网站无法鉴别所上传图片或文字的知识版权,如果侵犯,请及时通知我们,本网站将在第一时间及时删除,相关侵权责任均由相应上传用户自行承担。
[complaint:内容投诉]
智造资料网打造智能制造3D图纸下载,在线视频,软件下载,在线问答综合平台 » UG编程-拆铜公与出铜公工程图纸教程
1;所有标注为智造资料网zl.fbzzw.cn的内容均为本站所有,版权均属本站所有,若您需要引用、转载,必须注明来源及原文链接即可,如涉及大面积转载,请来信告知,获取《授权协议》。
2;本网站图片,文字之类版权申明,因为网站可以由注册用户自行上传图片或文字,本网站无法鉴别所上传图片或文字的知识版权,如果侵犯,请及时通知我们,本网站将在第一时间及时删除,相关侵权责任均由相应上传用户自行承担。
[complaint:内容投诉]
智造资料网打造智能制造3D图纸下载,在线视频,软件下载,在线问答综合平台 » UG编程-拆铜公与出铜公工程图纸教程

