牙膏是每个人每天都在使用的日用品,具有清洁口腔,保护牙齿的功效。在塑料产业没有得到发展之前,牙膏管采用金属锡来制造。目前,牙膏多采用塑料包装。牙膏管采用复合全塑软管挤出成型后与牙膏管肩压制而成。
牙膏管肩采用QB/T4192-2011 标准设计制造,其外观要求不允许有歪管肩,管肩缺料、磨损、拉毛和明显皱纹。管口不应有缺料、余料、糊料等现象。管身光洁平整、无明显弯曲、无塑料破损现象。管肩与帽盖不应有松动、歪帽、滑牙和脱帽现象。管肩与管身搭接宽度应控制在1.0~4.0mm 之间。牙膏管应有爆破强度和剥离强度要求,爆破强度为:管径Φ<35mm 时,充入0.2MPa 的空气,保持30s 不破裂。管肩剥离强度不小于15N/15mm,管帽与管肩密封性要好,应无气泡产生或有一个气泡5s 内不上浮。或能通过水泄测试。

图1 Φ30 牙膏管肩产品图
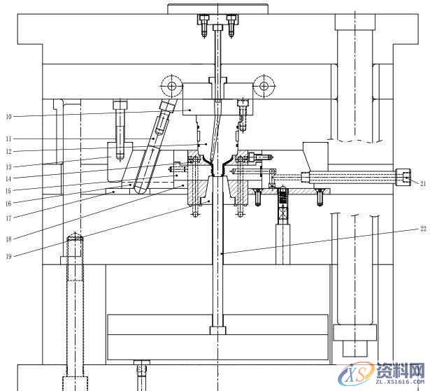
帽盖首次扭矩不小于10N·cm.牙膏管肩采用HDPE 注塑成型,本文介绍Φ30 牙膏管肩注射模具的设计特点。Φ30 牙膏管肩如图1 所示,缩水率为1.020,塑件平均壁厚为1.15 mm,塑件最大外形尺寸为Φ29.10 mm x 20.85mm。图1 Φ30 牙膏管肩产品图从图1 可以看出,Φ30 牙膏管肩口部有两圈螺纹,此螺纹与牙膏帽盖相互配合,满足密封与扭矩要求。外表面不能设计浇口,以免影响外观。因此,模具设计采取倒装模具设计。浇口和模穴编号均设置在塑件内部。塑件产量巨大,模具排位选择了1 出8,模架为标准模架,龙记模胚DCI3560 A65B70C100,水口边310,模板采用P20 料,为方便设计滑块抽芯系统,模具排位采用直线型排位。客户要求模具使用震德150 吨注射机生产,经验算,锁模力与塑化能力能够达到要求。浇口设计,采用三板模细水口点浇口,从塑件内部进胶,模具属于倒装模具。由于水口料较长,为了避免水口料

图2 模具设计图
从图1 可以看出,Φ30 牙膏管肩口部有两圈螺纹,此螺纹与牙膏帽盖相互配合,满足密封与扭矩要求。外表面不能设计浇口,以免影响外观。因此,模具设计采取倒装模具设计。浇口和模穴编号均设置在塑件内部。塑件产量巨大,模具排位选择了1 出8,模架为标准模架,龙记模DCI3560A65B70C100,水口边310,模板采用P20 料,为方便设计滑块抽芯系统,模具排位采用直线型排位。客户要求模具使用震德150 吨注射机生产,经验算,锁模力与塑化能力能够达到要求。浇口设计,采用三板模细水口点浇口,从塑件内部进胶,模具属于倒装模具。由于水口料较长,为了避免水口料粘水口推板,设计了弹水口装置8,组装在弹水口套9 内,由弹簧7 驱动。

图3模具设计图

图4模具设计图
由于1 出8 的模具排位,模具长度较长,滑块的设计采用一组滑块配4 穴型腔的设计方式。滑块的驱动方式为斜导柱驱动,滑块较长,每个滑块用两支斜导柱驱动。为保证塑件所有型腔的螺纹均匀一致,使组装后的管肩与帽盖密封性与扭矩均匀一致,模具滑块具有互换性要求,因此,滑块由滑块座16 和滑块镶件15 两部分组成。塑件的顶出由塑件底部的大顶针22 顶出。为了保证模具具有长寿命,所有模具零件均采用了热处理,见明细表。

图5模具设计图
(文章转载于网络、仅供学习分享,如有侵权请联系删除)东莞潇洒职业培训学校目前开设课程有:学历提升、积分入户、数控编程培训、塑胶模具设计培训,压铸模具设计培训、冲压模具设计培训,精雕、ZBrush圆雕培训、Solidworks产品设计培训、pro/E产品设计培训、AutoformR7工艺分析培训,非标自动化设计、PLC编程、CNC电脑锣操机、平面设计等培训,潇洒职业培训学校线下、线上等网络学习方式,随到随学,上班学习两不误,欢迎免费试学!
联系电话:13018636633(微信同号) QQ:1740467385
学习地址:东莞市横沥镇
1;所有标注为智造资料网zl.fbzzw.cn的内容均为本站所有,版权均属本站所有,若您需要引用、转载,必须注明来源及原文链接即可,如涉及大面积转载,请来信告知,获取《授权协议》。
2;本网站图片,文字之类版权申明,因为网站可以由注册用户自行上传图片或文字,本网站无法鉴别所上传图片或文字的知识版权,如果侵犯,请及时通知我们,本网站将在第一时间及时删除,相关侵权责任均由相应上传用户自行承担。
[complaint:内容投诉]
智造资料网打造智能制造3D图纸下载,在线视频,软件下载,在线问答综合平台 » 注塑模具设计之牙膏管肩制作方法

