一.引言
吸尘器按结构可分为立式、卧式和便携式。吸尘器的工作原理是,利用电动机带动叶片高速旋转,在密封的壳体内产生空气负压,吸取尘屑。目前吸尘器国内市场走势平稳,国内需求一直不温不火。如今国内吸尘器市场缓慢增长,发展速度保持在10%左右,但是需求的规模很小,基本维持在400万台左右。
由于产品结构的调整及通货膨胀的影响,未来国内吸尘器的销售额将持续走高。卧式吸尘器是亚欧市场较为常见的吸尘器类型,占整体市场的80%以上。其特点是外形小巧,存放方便。本文老师主要介绍下卧式吸尘器上盖模具的设计。
图1-1吸尘器上盖产品图
图1-2吸尘器上盖产品图
二.产品分析
吸尘器上盖产品图如图1所示,塑件最大外形尺寸为445mm x156mm x152mm,塑件质量为825克,塑件尺寸较大,结构复杂,骨位多,深度大。塑件材料为ABS,具有良好的注塑工艺性。
塑件的前模下凹部分有一处需要设计前模滑块(斜顶)抽芯,塑件一个端面需要设计后模滑块抽芯。模具设计的难点是对于多骨位深多骨位的大型塑件,如何设计镶件解决模具加工和注塑问题。

三.模具设计要点:
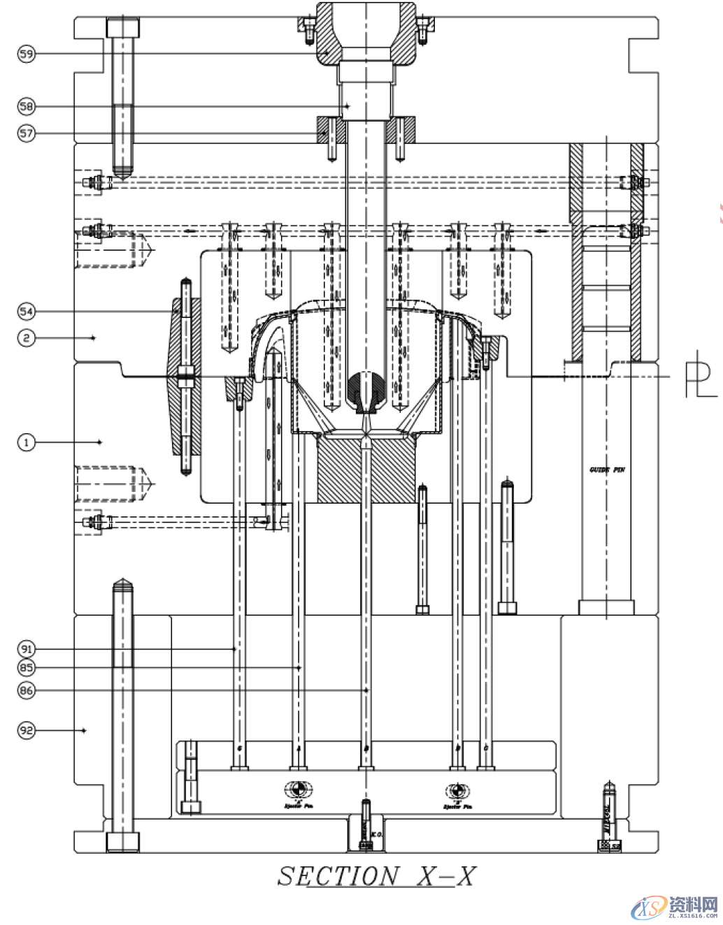
1.型腔数的确定:塑件属于大型塑件,外形复杂,需要设计滑块抽芯。模具属于大型模具,出模数量1出1,后模滑块设计在地侧。
图3产品设计图
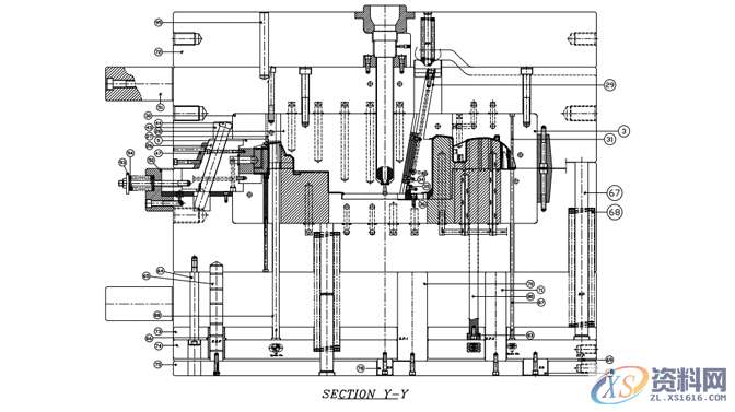
2.浇注系统设计:塑件结构复杂,骨位多,骨位深度大,结合塑件的特点,在塑件中间的窗口进胶是最理想的,容易填充。浇注系统设计见模具设计图2。塑料由一个加长的热嘴注入分型面。
3.分型面的定位:模胚三边设计了止口定位,这是大型模具惯常用的定位方法。
四.模仁全镶拼结构设计:
后模的全镶拼结构见图3及图4,前模的镶拼结构见图5。在大型模具中存在大量的镶件,由于塑件外观造型的曲面复杂性和脱模斜度造成镶件的不规则性,镶件有规则的,也有异形的,有大,有小,有时大镶件里面还有小镶件,那么如何对其进行分割呢,全镶拼结构的分割必须充分考虑加工工艺性,其分割要点如下:
图4模具设计图
1.全镶拼结构镶件分割前,需要确定镶件的加工基准和所有镶件组装的基准。模仁的基准和模胚上精框的基准
相互重合。对于全镶拼结构的模具设计,以基准角为基准加工具有精度较高的优点。分割镶件以及确定基准时,要注意避免出现薄弱部位,不得损害模仁的强度。
2.镶件分割的工艺因素,尽量考虑便于CNC加工中心加工到位,尽可能避免需要EDM电火花成型,镶件的沟槽和异形孔尽可能分解成能够线切割加工到位,平面和台阶面尽可能使用磨床加工到尺寸。
3.圆形的结构要素尽可能分解成圆形的镶件,便于数控车床加工或者后续的内外圆磨床加工。
4.对于细小的深的骨位或者其他细小的部位,无法进行线切割或切削加工的,拆分镶件,减少EDM电火花的加工量。
5.面积较大而高度相差悬殊的部位,拆分镶件可以极大地减少加工量,也可以解决了刀具不够长度或刀具刚性不足的问题,同时也可以节约大量的钢材。
图5模具设计图
6.热量不易扩散从而导致冷却不足的部位,需要增加铍铜镶件以便散热。但是塑件为PP时尽可能不用铍铜做镶件。
7.全镶拼结构镶件分割,一定要考虑到镶件易于组装, 需要模具设计资料和软件的可以加老师扣 2651253018 免费领取哦! 方便模具拆卸,具有高的精度,需要模具设计资料和软件的可以加老师蔻蔻26512 53018 免费领取哦!反复拆卸不会降低其精度。
8.所选镶拼位置应该选择在不损害塑件外观和功能处,前模如果做镶件,型腔会产生镶件线,需要客户的确认才行。
9.前后模仁均采用挤紧块挤紧。大型模具的挤紧块不应为一个整条,应分段制作,避免损害模胚强度。
图6模具设计图
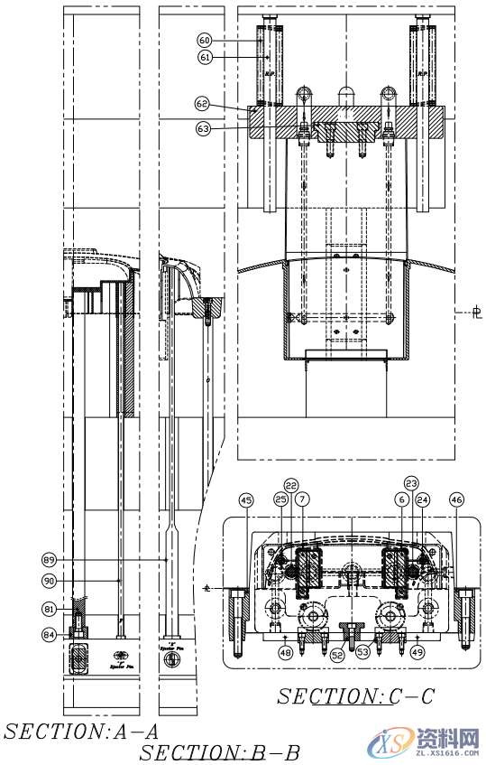
五.抽芯机构设计:
端面的后模滑块,采用斜导柱驱动,滑块斜面和底面均设计了耐磨块。前模斜顶采用弹簧驱动,模具设计结构紧凑,斜定利用和后模仁的碰穿回位。
六.顶出系统设计:塑件利用边缘的顶块91和顶针顶出。
七.冷却系统设计:主要依靠冷却水井冷却,见模具设计图。
图7-1吸尘器上盖模具图
图7-2吸尘器上盖模具图
图8后模镶件平面图
图9后模镶件3D图
图10前模镶件3D图
图11前模镶件3D图
东莞潇洒职业培训学校目前开设课程有:学历提升、积分入户、数控编程培训、塑胶模具设计培训,压铸模具设计培训、冲压模具设计培训,精雕、ZBrush圆雕培训、Solidworks产品设计培训、pro/E产品设计培训、AutoformR7工艺分析培训,非标自动化设计、PLC编程、CNC电脑锣操机、平面设计等培训,潇洒职业培训学校线下、线上等网络学习方式,随到随学,上班学习两不误,欢迎免费试学!
联系电话:13018636633(微信同号) QQ:1740467385
学习地址:东莞市横沥镇
1;所有标注为智造资料网zl.fbzzw.cn的内容均为本站所有,版权均属本站所有,若您需要引用、转载,必须注明来源及原文链接即可,如涉及大面积转载,请来信告知,获取《授权协议》。
2;本网站图片,文字之类版权申明,因为网站可以由注册用户自行上传图片或文字,本网站无法鉴别所上传图片或文字的知识版权,如果侵犯,请及时通知我们,本网站将在第一时间及时删除,相关侵权责任均由相应上传用户自行承担。
[complaint:内容投诉]
智造资料网打造智能制造3D图纸下载,在线视频,软件下载,在线问答综合平台 » 镶件拆分式注塑模具设计:复杂的吸尘器上盖设计

