光纤激光器支架产品图见图 1,产品最大外形尺寸为 459.94 mm x 144.15 mm x 36.80mm ,塑件平均胶位
厚度 1.80,塑件材料为 PP,缩水率为 1.016。塑件技术要求为不得存在披峰、注塑不满、流纹、气孔、翘曲变形
和喷射纹等各种缺陷,塑件成型中不得使用脱模剂。

需要此3d模型的可以私信老师免费领取

从图1 可以看出,塑件为大型扁平形塑件,分为左右两个部分,中间以3 段塑胶铰链连接。注塑成型出模后,立即将左右两部分翻折组装扣紧。由于聚丙烯抗疲劳,大多数塑料铰链,如洗发水瓶子的翻盖,都是由这种材料制成的。
塑件顶面有两处凸台倒扣,需要设计前模滑块成型。因此模具设计的难点在于两处滑块的机构设计,塑件的
浇注系统设计,塑件两面均有多处骨位,容易粘前模,以及避免塑件变形。

利用某些塑料(如聚丙烯)的分子高度取向的特性,可将塑件的两部分,例如带盖容器的盖子和容器通过铰链
结构直接成型为一个整体,这样既省去了装配工序,又可避免金属铰链的生锈。常见的截面形式如下图所示:

铰链的设计要点如下:
(1)铰链的曲率半径部分尽可能地采用薄壁,一般为0.2~0.4mm,且其厚度必须均匀一致,壁厚的减薄处应以
圆弧过渡。
(2)铰链部分的长度不宜过长,否则折弯线不在一处,影响闭合效果。本例中,三段铰链的长度为55mm,如果
将此三段连接为一体,则长度太长,闭合后容易出现错位。
(3)铰链剖面形状应该对称,当铰链要转折时,应预留铰链部位空间,即增大铰链部分的尺寸。
(4)在成型过程中,熔体流向必须垂直于铰链轴线方向,以使大分子沿流动方向取向,脱模后立即折弯数次。




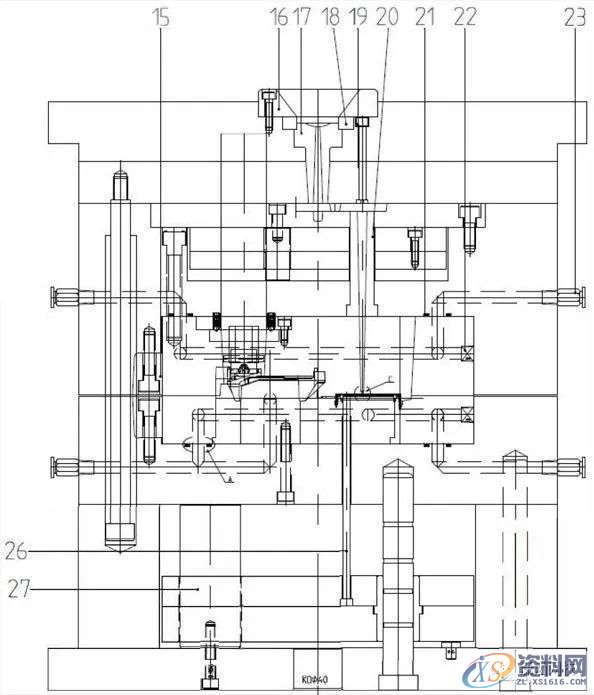
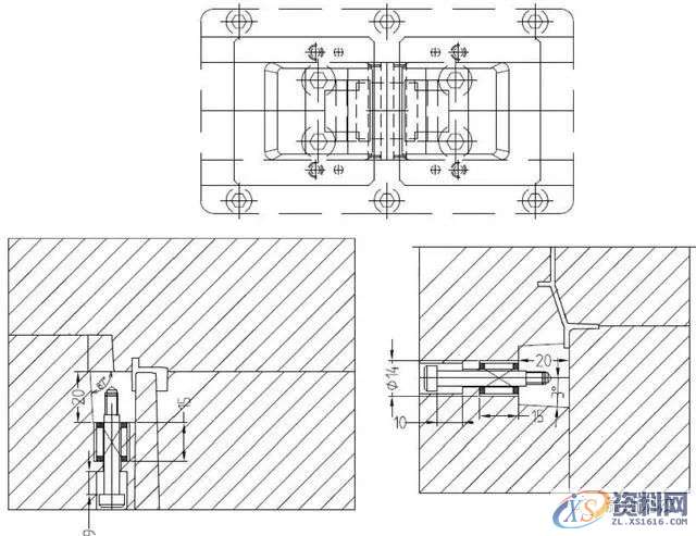
由于塑件尺寸较大,模具属于大型模具,型腔排位只能是1 出1,采用标准细水口模胚DCI4070A160B90C120,塑件两面均有多处骨位,容易粘前模,因此,开模方向选择以及预防塑件粘前模是模具设计首先要做的思路。实际的开模方向选择见模具设计图2,对于容易粘前模的部位,设计了前模弹块和前模顶针,有效地帮助塑件在开模时留在动模。由于模仁尺寸较大,在模仁的非基准侧的两边,分别设计了挤紧块15,便于模具组装。在模胚的四边分别设计一个锥形定位块14,有利于提高模具合模精度。

前模顶针安装在顶针板上,开模时依靠弹簧10 驱动顶针板顶出,合模时,由回针碰分型面回位。塑件尺寸较大,需要设计6 点点浇口成型。水口司20 既为前模充当撑头的作用,细水口的垂直流道从其中流过。
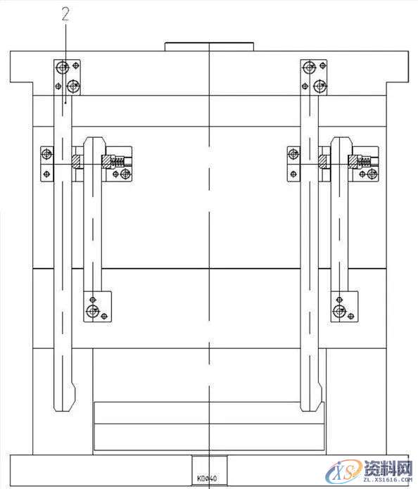
三板模的水口板限位由塞打螺丝13 完成,扣机24 起到拉开前模的作用,此处使用扣机可以避免使用尼龙开闭器,其用途是完全一致的。塑件顶部的两处倒扣凸台设计在前模,利用T 型槽滑块驱动。铲机4 固定在模具面板上,行位镶件6 固定在行位5 上,行位行程由波珠12 限位。

关于模具的冷却系统设计,前模设计了2 条冷却回路。后模设计了4 条冷却回路。见模具设计图2,冷却系统直径为10,前模为直通式运水,后模为直通式运水和水塘两种运水形式。塑件的顶出方式为顶针顶出。大部分顶针为6,边缘个别顶针为1.2.











东莞潇洒职业培训学校开设课程有:高升专、专升本学历提升、全日制中职学校学位、积分入户、数控编程培训、塑胶模具设计培训,压铸模具设计培训、冲压模具设计培训,精雕、ZBrush圆雕培训、Solidworks产品设计培训、pro/E产品设计培训、AutoformR7工艺分析培训,非标自动化设计、PLC编程、CNC电脑锣操机、文职培训、电商培训、平面设计等培训、电商培训,潇洒职业培训学校线下、线上等网络学习方式,随到随学,上班学习两不误,欢迎免费试学!
联系电话:13018639977(微信同号)QQ:2033825601
学校官网:www.dgxspx.com 智造人才网:www.58hr.net
学习地址:东莞市横沥镇新城工业区兴业路121号-潇洒职业培训学校1;所有标注为智造资料网zl.fbzzw.cn的内容均为本站所有,版权均属本站所有,若您需要引用、转载,必须注明来源及原文链接即可,如涉及大面积转载,请来信告知,获取《授权协议》。
2;本网站图片,文字之类版权申明,因为网站可以由注册用户自行上传图片或文字,本网站无法鉴别所上传图片或文字的知识版权,如果侵犯,请及时通知我们,本网站将在第一时间及时删除,相关侵权责任均由相应上传用户自行承担。
[complaint:内容投诉]
智造资料网打造智能制造3D图纸下载,在线视频,软件下载,在线问答综合平台 » 精密模设计:光纤激光器支架注塑设计要点,你学到了么!

