1. 序言
电子体温计由温度传感器、液晶显示器及导电条、钮扣电池和 PCB 板等元件组成。能快速准确地测量人体


图 1 电子体温计外壳产品图
体温,与传统的玻璃水银体温计相比,具有读数方便,测量时间短,测量精度高,能记忆并有蜂鸣提示的优点,特别是电子体温计不含水银,对人体及周围环境无害,因此得到广泛的应用。从使用场合区分,有家庭型和医院使用型两种,从功能上区分,有防水型和普通型两种。从构造上看,有铝头、感温线、显示屏及支架、开关、按键以及电池盖。普通的电子体温计一般包含 5 种塑胶零件,即本体(外壳)、面板(镜片)、电池盖、背盖和主机壳,
本体(外壳)是最主要最关键的零件,下面详述本体(外壳)的模具设计制造要点。欧姆龙某型号 30 秒电子体温计外壳产品如图 1 所示。


2. 产品分析
电子体温计本体产品图见图 1,从图中可以看出,制品长度较长,内部空心, 小端有内径Φ1.6 的通孔,大端外部有沟槽,内装密封圈,与电池盖配合组装后起到防水的作用。 小端为头部量测部位,装有铝头,铝头内部有传感器,通过感温线与 PCB 板相连。铝头外形呈圆柱形,组装后的技术要求是铝头直径小于与其相邻的本体直径, 目的是为了防止测量完毕后抽出体温计时,铝头由于阻力而滑落在人体内。本体内侧有两条导向槽,由 4 条平行骨位组成,用来为主机壳导向,要求此 4 条骨位与抽芯方向有良好的平行度。 体温计本体通常采用台湾奇美 ABS 757 原料成型,这种原料于人体无害,且具有良好的成形性能和超声波焊接性能。


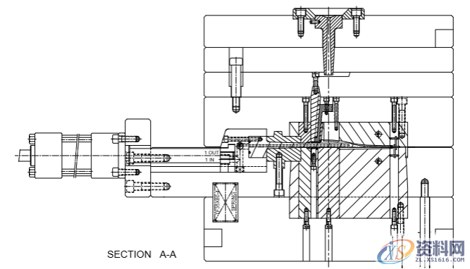
图 2 电子体温计外壳模具图
电子体温计作为腋窝测量、肛门测量和口腔测量的一种常规温度计,与人体接触,因而外观要求平顺光滑无毛刺,手感良好,电池盖、铝头和体温计本体组装后的段差小于 0.03 mm, 且段差均匀,前后模在分型面的段差小于 0.01mm,这种段差是手感感觉不出来以及肉眼不易观察到的。 体温计本体内部抽芯的型芯长而且存在细长薄弱部位。因此,模具设计与制作存在很大的难度。


图 3 前模滑块结构图
本例介绍的是欧姆龙某型号 30 秒电子体温计外壳产品,与普通的电子体温计相比,这款产品的外壳增加了一处小倒扣,见图 1,深度 1.5mm, 用于电池盖的定位。此处小扣位的尺寸较小,给模具设计带来了极大的难度。
3. 模具结构设计
3.1 总体设计
电子体温计属于产量较大的产品, 通常可以设计 1 出 2 或者设计 1 出 4 的模具, 本例设计了 1 出 4,配合 150 吨的注射机生产。 分型面的选取如图 2 所示,抽芯方向选择垂直于开模的方向,由于抽芯距离较长,选择了油缸抽芯,经过计算抽芯力,选择缸径为 50mm,行程 150mm 的油缸。根据制品的使用要求,外观面不能存在进胶点和顶针印, 因此进胶点选择在制品尾部防水圈槽的旁边,点浇口进胶,组装后被电池盖遮挡,不影响制品外观。 模胚采用细水口非标模胚设计,规格为 DDI3535.
由于塑件的倒扣较小,如果将其设计在动模抽芯,会给油缸抽芯的模具动作带来困难,不利于设计顶出机构。因此将此小扣位设计在前模抽芯,抽芯机构采用了 T 型槽的机构,为了抽芯的平稳和不易出现故障,需要限定抽芯距离,这样,需要在水口板和 A 板之间增加一块模板,这样就可以既保证 T 型槽的机构在抽芯时不脱开,又不影响水口料的取出。
3.2 模仁导向与定位
由于制品的前后模仁在分型面的段差需要控制在 0.01 mm 以下,模具需要良好的定位与导向,仅靠模具的导柱导套导向是远远不够的。 为此在前模仁和后模仁的四角设计了 5°的虎口,确保前后模仁合模精度能够长期保持。同样在后模仁的四周与推板配合部位,设计单边 3°的斜度; 刮板与前模仁也以斜度配合, 所有这些措施保证了推板的准确复位。前后模仁的钢材选择日本预硬化钢材 NAK80,较高的硬度可以保证分型面不易塌陷。
3.3 中子的设计
根据体温计外壳产品的特点,中子的尺寸较长,头部又细,直径仅Φ1.6mm, 因此中子钢材的选择与中子冷却是很关键的。 中子的钢材应能承受热冷交替产生的应力,保持刚性和韧性,长期使用不变形和弯曲,为此我们选择了日立公司的 TDAC 钢材,通过 20 多年来的应用表明,该钢材的性能能够保证体温计本体模具钢材的要求。
中子的尺寸较小,普通的冷却方法很难达到冷却的效果,在中子的内部设计了Φ2x150mm 的冷却棒,冷却棒是由特制的紫铜管加入网状管芯后,再加入一定量的制冷剂密封而制成。冷却棒适合细长型芯和普通冷却水无法到达的狭窄位置,它有很好的热传递性能,可以把注塑带来的热量从一端迅速传递到另一端,由装有冷却水的一端进行冷却,再把低温传递到顶端,周而复始。
安装孔径加工要比冷却棒直径大 0.1-0.2,安装深度需达到总管长的 2/3,冷却水浸泡长度不得低于总长度的 1/4~1/3. 冷却棒装入时,需要涂抹传热润滑膏,增加热传导性能。冷却水道直径应做大,以便冷却水可以带走足够的热量与方便温度调节。使用时需注意冷却棒不可切断,也不可弯曲和压扁。
冷却棒最初是上世纪 70 年代美国航天局用于航空飞行器的冷却的,后来日本公司将它用于压铸模具,取得了很好的冷却效果从而在模具行业得到广泛使用。 冷却棒的效率分析,使用时需要注意,冷却侧位于模具天侧,通入冷却棒的运水要从天侧接入,这样冷却棒的冷却效率较高,反之,冷却棒的冷却效率较低, 这也是容易疏忽的。本例的模具,注射时,模具油缸朝天,正好符合冷却棒的高效率设计。
4. 模具制造要点
体温计本体模具的制造需要考虑制品本身的使用要求,在本体尾部和电池盖组装的部位,前后模都要做镶件,做镶件后可以调整配合尺寸,确保防水圈部位的间隙,确保防水功能。在体温计头部,也要前后模都做镶件, 便于调整尺寸,使铝头的组装达到过盈配合,做镶件的另一个目的是便于抛光,前后模仁组合后整体抛光,可以有效消除段差,也有利于模具的排气以及后期的维修。
我们是知识搬运工,我们是技术传播者!
东莞潇洒职业培训学校开设课程有:CNC数控编程、塑胶模具设计,压铸模具设计、冲压模具设计, Solidworks/pro/E产品设计、AutoformR7工艺分析,非标自动化设计、PLC编程、文职、电商、平面设计、新媒体等培训课程,潇洒职业培训学校线下、线上、随到随学等学习方式,上班学习两不误,欢迎预约免费试学!
联系电话:18029183455(微信同号)QQ:2799669782
线上免费试学: xsmj.ke.qq.com
1;所有标注为智造资料网zl.fbzzw.cn的内容均为本站所有,版权均属本站所有,若您需要引用、转载,必须注明来源及原文链接即可,如涉及大面积转载,请来信告知,获取《授权协议》。
2;本网站图片,文字之类版权申明,因为网站可以由注册用户自行上传图片或文字,本网站无法鉴别所上传图片或文字的知识版权,如果侵犯,请及时通知我们,本网站将在第一时间及时删除,相关侵权责任均由相应上传用户自行承担。
[complaint:内容投诉]
智造资料网打造智能制造3D图纸下载,在线视频,软件下载,在线问答综合平台 » 电子体温计外壳注射模具设计

