1.塑件分析
蝴蝶结翻盖如图1 所示, 材料为PP , 收缩率为15 ‰, PP 属于结晶性塑料, 材料的柔韧性较好,伸缩率较高。流动性好 ,吸湿性小, 具有良好的耐折叠性 , 但其成型收缩范围大, 收缩率大,易发生缩孔 、凹痕、变形 , 方向性强, 注射时应严格控制成型参数。零件分上、下盖两部分,上下盖的连接属于典型的塑胶铰链连接,类似于蝴蝶形状,故叫蝴蝶结翻盖,这种翻盖可多次开合,需一次出模成型,广泛应用于洗发水和沐浴露等洗涤用品中。为提高产品的美观程度和防止液体外溢,下盖口部有环状凸筋, 上下盖小孔配合精密, 外观要求光滑, 不允许有明显的分型面接痕。上盖开启和闭合时,需要有弹性,手感松紧适当,自动到位。每个塑件的弹性均衡,外观良好。




图1 蝴蝶结翻盖产品图
2.模具设计方案
(1)塑件属于大批量制品,为避免在塑件表面出现进料痕 , 保证进料均匀, 模具采用潜伏式浇口进料 , 浇口位置选在上下盖扣合处的下盖部位,进胶点在制品合盖后不明显。
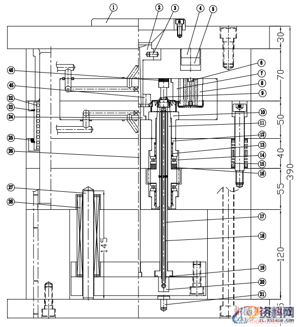
(2) 为避免在塑件表面产生接痕 , 塑件的上、下盖外形部分全部设计在动模。分型面的选取见模具图,鉴于上盖的内表面在定模,开模时,制品会粘定模,故在定模设计了顶出结构。3个型腔共用一组顶针板,每个型腔定模加了4支顶针31。定模顶针板的顶出依靠黄弹簧30的弹力,定模顶针板的回位依靠回针32碰推板回位。
(3)由于塑件的下盖动模有螺纹,故设计了液压马达脱螺纹的机构,通过尺寸齿轮传动脱出螺纹。
(4)模具排位采用1出6,可以满足大批量生产的要求。
(5)为了保证动定模合模的准确性,模胚的四边设计了4个精定位边锁,给模具导向。
(6)推板设计了滚珠导套,导柱采用无油槽型直线导柱,精准导向。
(7) 动定模仁设计了充分的运水,动内模镶件17内有冷却水管18,保证了冷却效果。
(8)模具采用模数为2的标准齿轮,轴承也采用标准件,便于维护。

图2 蝴蝶结翻盖定模图

图3 蝴蝶结翻盖动模图

图4 蝴蝶结翻盖模具剖面图

图5 蝴蝶结翻盖模具剖面图
3.模具动作分析
开模时,分型面打开,制品随在动模上,摆线液压马达启动,通过齿轮传动,转芯11旋转带动制品出模,同时推板弹出。水口料通过顶针26顶出,完成一次注塑循环。
4.总结
通过投产后的实践证明,模具设计合理,完全满足大批量生产的要求。可供同类模具设计时参考。
我们是知识搬运工,我们是技术传播者!
东莞潇洒职业培训学校开设课程有:CNC数控编程、塑胶模具设计,压铸模具设计、冲压模具设计, Solidworks/pro/E产品设计、AutoformR7工艺分析,非标自动化设计、PLC编程、文职、电商、平面设计、新媒体等培训课程,潇洒职业培训学校线下、线上、随到随学等学习方式,上班学习两不误,欢迎预约免费试学!
联系电话:18029183455(微信同号)QQ:2799669782
线上免费试学: xsmj.ke.qq.com
1;所有标注为智造资料网zl.fbzzw.cn的内容均为本站所有,版权均属本站所有,若您需要引用、转载,必须注明来源及原文链接即可,如涉及大面积转载,请来信告知,获取《授权协议》。
2;本网站图片,文字之类版权申明,因为网站可以由注册用户自行上传图片或文字,本网站无法鉴别所上传图片或文字的知识版权,如果侵犯,请及时通知我们,本网站将在第一时间及时删除,相关侵权责任均由相应上传用户自行承担。
[complaint:内容投诉]
智造资料网打造智能制造3D图纸下载,在线视频,软件下载,在线问答综合平台 » 全网首发:蝴蝶结翻盖注射模设计

