9.12 齿轮轴
一、实例分析
在圆柱体的一端创建齿轮,参见9.3驱动齿轮。
二、学习目标
同9.3 。
三、设计过程
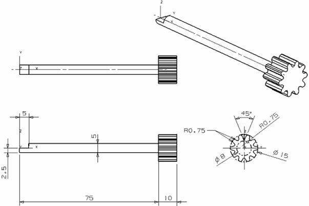
齿轮轴的结构尺寸如图9-129所示,绘制步骤如下:

图9-129 齿轮轴结构图
1. 选择“文件”|“新建”命令,新建名称为chilunzhou.prt的部件文档,再选择“起始”|“建模”命令打开建模功能;
2.单击“圆柱”按钮
,选择“直径,高度”,选择矢量方向为XC,以坐标原点为起点,在参数对话框内输入“直径”为“5”,“高度”为“75”,单击“确定”,效果如图9-130所示;

图9-130 创建圆柱体
3. 单击“圆台”按钮
,选择圆柱体的末端圆面为放置面,在参数对话框内输入“直径”为“15”,“高度”为“10”,定位方式为“点到点”,选择圆柱体端面的圆心定位,效果如图9-131所示;
4.单击“矩形”按钮
,输入XC方向为5,其他两个方向为8,单击“捕捉点”工具条上的“点构造器”按钮
,输入坐标点(0,0,-4)作为长方体的放置点,单击“确定”按钮,效果如图9-132所示;

图9-131 创建圆台 图9-132 创建长方体

图9-133 布尔求差操作 图9-134 绘制草图曲线
5. 单击“求差”按钮
,以圆柱为“目标体”,长方体为“刀具体”,单击“确定”按钮,效果如图9-133所示;
6.单击“草图”按钮
,选择圆台上端面作为草图平面,绘制草图如图9-134所示,单击“完成草图”;
7. 单击“拉伸”按钮
,选择草图曲线拉伸,拉伸长度为“10”,并执行“布尔求差”,得到如图9-135所示效果;
8.单击“特征操作”工具条上的“实例”按钮
,在弹出的“实例”对话框选择“环形阵列”,选择上一步拉伸的槽,“回转轴”选择“点和方向”,在“实例”参数对话框内输入“数字”为“10”,“角度”为“360/10”,如图9-136(a)所示,选择端面圆心点和XC轴方向,单击“确定”按钮,完成环形阵列操作,效果如图9-136(b)所示;
9.单击“边倒圆”按钮
,选择图9-137(a)所示齿3条棱,输入“半径”为“0.75”选择“隐藏所有引用”选项,单击“确定”按钮,得到如图9-137(b)所示效果;

(a) (b)
图9-135 拉伸草图 图9-136 环形阵列

(a) (b)
图137 倒圆角
10.将基准平面移至61层,保存,完成齿轮轴的创建,如图9-138所示。见光盘part/9/chilunzhou.pat

图9-138 齿轮轴
1;所有标注为智造资料网zl.fbzzw.cn的内容均为本站所有,版权均属本站所有,若您需要引用、转载,必须注明来源及原文链接即可,如涉及大面积转载,请来信告知,获取《授权协议》。
2;本网站图片,文字之类版权申明,因为网站可以由注册用户自行上传图片或文字,本网站无法鉴别所上传图片或文字的知识版权,如果侵犯,请及时通知我们,本网站将在第一时间及时删除,相关侵权责任均由相应上传用户自行承担。
[complaint:内容投诉]
智造资料网打造智能制造3D图纸下载,在线视频,软件下载,在线问答综合平台 » UG卡丁车设计实例教程(十二)_齿轮轴(图文教程)

